urban
public
housing
NOA
N
info
en
/
fi
Urban planning
Public buildings
Housing design
Info
en /
fi
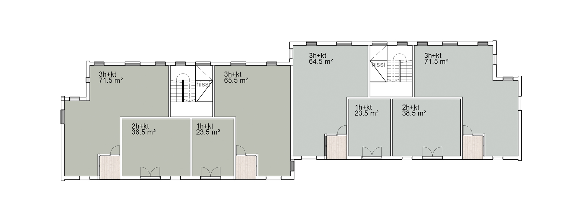
Koivistonkylä infill housing
Open slideshow
Location:
Tampere, Finland
Client:
Peab Suomi Oy
Category:
Design and build competition, 1st place
Size:
3680sqm²
Year:
2021
Status:
In progress