kaupungit
rakennukset
asunnot
NOA
N
info
en
/
fi
Kaupunkiympäristöt
Julkiset rakennukset
Asuntosuunnittelu
Info
en /
fi
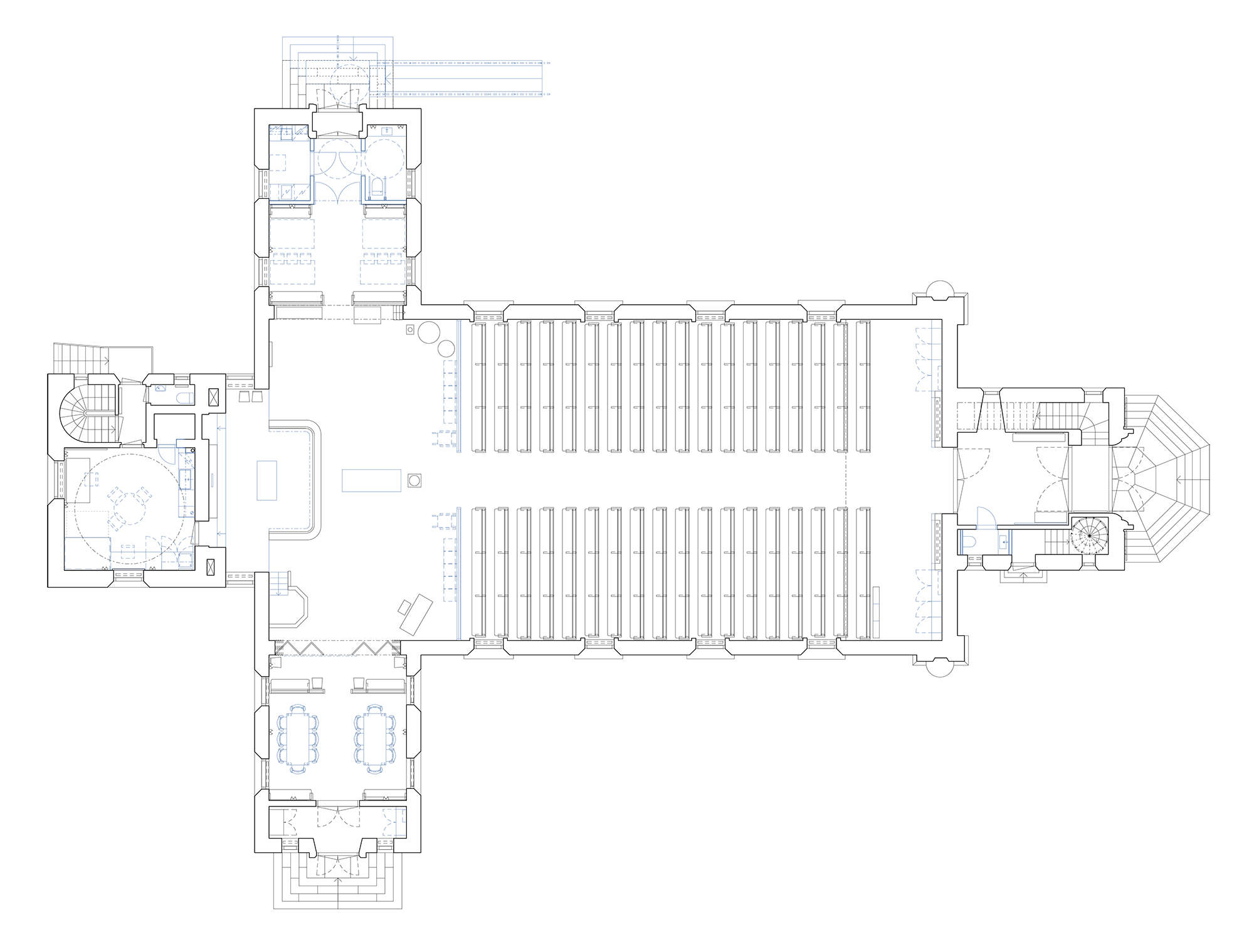
Kosken kirkon peruskorjaus
Avaa slideshow
Sijainti:
Koski Tl
Tilaaja:
Salon seurakunta
Kategoria:
Peruskorjaus ja muutos, julkinen rakentaminen
Laajuus:
600 kem²
Vuosi:
2024
Tila:
Rakentaminen käynnissä